Z-650 西宮市高木東町 貸店舗事務所
Z-650
【成約済】
| 物件種目 | 貸店舗事務所 |
|---|---|
| 住所 | 兵庫県西宮市高木東町 |
| 最寄駅 | 阪急神戸線「西宮北口」駅より徒歩約11分 |
| 敷地面積 | |
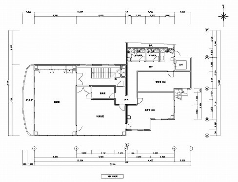
| 各階面積 | 1階 207.19㎡(62.67坪) 2階 208.81㎡(63.16坪) 3階 193.26㎡(58.46坪) |
| 延床面積 | 609.26 m²(約 184.3 坪) |
| 建物構造 | 鉄骨造陸屋根・地上3階建 |
| 築年月 | 1994年7月(平成6年) |
| 用途地域 | 第二種中高層住居専用地域 |
| 賃貸対象 | 一棟貸 |
| 駐車スペース | 前面空地約6台駐車可(無料) |
| 接道状況 | 中津浜線面す |
| 設備 | エレベーター |
| 入居時期 | 相談 |
| 取引態様 | 媒介 |
| 備考 | 分割相談可 |
登録日
2021年6月23日
担当者コメント